神戸,兵庫を中心とした貸事務所,賃貸オフィスをお探しの方、お客様のご要望にあった物件をご紹介致します。
ベストオフィスでは、神戸,兵庫の主要エリア別、最寄駅別、また地図より直接、
このように豊富な条件より、神戸,兵庫の貸事務所,賃貸オフィスを検索することができます。
また神戸,兵庫には様々な特色をもった貸事務所,賃貸オフィスやビルなどの事業用不動産が多数あります。
大型ビルやデザイナーズといった特色から検索することも可能です。
神戸,兵庫の貸事務所,賃貸オフィスをお探しの方は、お気軽にご相談ください。
ベストオフィスでは貸事務所,賃貸オフィスの仲介だけでなく、移転や出店に関するあらゆる業務のソリューションをご提案させていただいております。
疑問点や気になることは、どんなことでもご相談ください。
神戸,兵庫の貸事務所,賃貸オフィスの仲介、ご相談はベストオフィスよりどうぞ。

神戸,兵庫の貸事務所,賃貸オフィスである三宮東ビル 本物件の詳細をご紹介致します。
三宮東ビルについて、ご不明な点や条件交渉など、お気軽にベストオフィスまでお問合せください。
その他にも、10000件以上の物件よりお客様のご希望にあう神戸,兵庫の貸事務所,賃貸オフィスをご紹介致します。
神戸,兵庫の貸事務所,賃貸オフィスの仲介、ご相談はベストオフィスよりどうぞ。
[ こちらの物件の募集は終了しております ]
広さ、価格、場所等 類似物件もございますので、
右の 類似おすすめ物件 をご覧ください。
メイン画像
| 建物概要 ・ 設備 |
| 物件コード |
J2-25026-34645 |
| 物件名 |
三宮東ビル |
| 所在地 |
神戸市中央区雲井通 4-1-2 |
| 最寄駅 |
JR神戸線三ノ宮 徒歩 5 分 阪急神戸線神戸三宮 徒歩 5 分 阪神本線神戸三宮 徒歩 5 分 |
| 構造 |
鉄骨ALC造 地上8階 地下2階建 |
| 竣工 |
1997年 07月 |
| 駐車場 |
有り |
| 設備 |
■ 24時間使用可能 / ■ エレベーター複数基 / ■ 個別空調方式 / ■ 機械警備 / ■ 光ファイバー / ■ OAフロア / ■ トイレ(ウォシュレット) / ■ トイレ(男女別) |
| 備考 |
JR三ノ宮駅徒歩5分。他、各私鉄にも徒歩圏内。国道2号線沿いにあるオフィスビルです。スタイリッシュな外観と高い吹抜けの開放感のあるエントランスホールが印象的な物件です。 |
| 賃貸条件 ・ メリット |
※ 表示価格等は募集条件です。 条件交渉は
お気軽にご相談下さい。
|
| 募集階 |
7 階 |
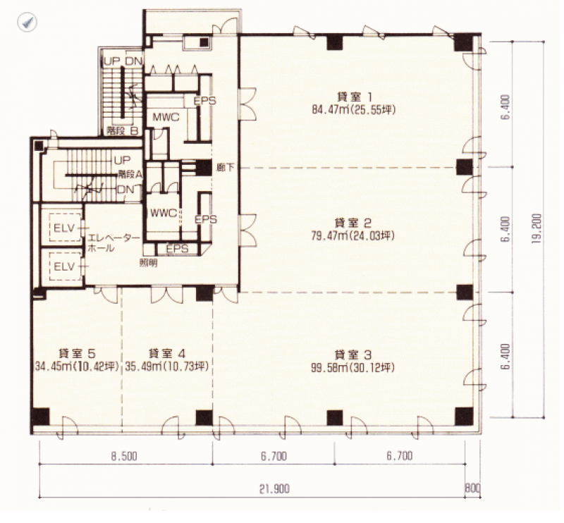
| 契約面積 |
100.85 坪 ( 333.38 m2 ) |
| 賃料 (@坪単価) |
相談
|
| 共益費 (@坪単価) |
相談
|
| 賃料合計 (@坪単価) |
相談
|
| 保証金 (@坪単価) |
相談
|
| 礼金 (@坪単価) |
相談
|
| 解約引 |
相談
|
| 入居時期 |
- |

三宮東ビルへのアクセスがわかりにく場合や、ご不明な点、条件交渉など、お気軽にベストオフィスまでお問合せください。
神戸,兵庫の貸事務所,賃貸オフィスの仲介、ご相談はベストオフィスよりどうぞ。

閲覧いただきました物件だけでなく、三宮東ビルには、そのほか良い物件がありますので、ご不明な点や条件交渉などお気軽にベストオフィスまでお問合せください。
神戸,兵庫の貸事務所,賃貸オフィス 三宮東ビルの仲介、ご相談はベストオフィスよりどうぞ。
| 階数 |
契約面積 |
賃料(税抜) (@坪単価) |
共益費(税抜) (@坪単価) |
保証金 (@坪単価) |
入居可能日 |
|
|
1 階 |
50.10 坪 ( 165.61 m2 )
|
相談
|
相談
|
相談
|
-
|
|
|
2 階 |
32.87 坪 ( 108.66 m2 )
|
相談
|
相談
|
相談
|
-
|
|
|
3 階 |
10.73 坪 ( 35.47 m2 )
|
相談
|
相談
|
相談
|
-
|
|
|
4 階 |
25.55 坪 ( 84.46 m2 )
|
相談
|
相談
|
相談
|
-
|
|
|
6 階 |
13.10 坪 ( 43.3 m2 )
|
相談
|
相談
|
相談
|
-
|
|
|
6 階 |
15.50 坪 ( 51.23 m2 )
|
相談
|
相談
|
相談
|
-
|
|