神戸,兵庫を中心とした貸事務所,賃貸オフィスをお探しの方、お客様のご要望にあった物件をご紹介致します。
ベストオフィスでは、神戸,兵庫の主要エリア別、最寄駅別、また地図より直接、
このように豊富な条件より、神戸,兵庫の貸事務所,賃貸オフィスを検索することができます。
また神戸,兵庫には様々な特色をもった貸事務所,賃貸オフィスやビルなどの事業用不動産が多数あります。
大型ビルやデザイナーズといった特色から検索することも可能です。
神戸,兵庫の貸事務所,賃貸オフィスをお探しの方は、お気軽にご相談ください。
ベストオフィスでは貸事務所,賃貸オフィスの仲介だけでなく、移転や出店に関するあらゆる業務のソリューションをご提案させていただいております。
疑問点や気になることは、どんなことでもご相談ください。
神戸,兵庫の貸事務所,賃貸オフィスの仲介、ご相談はベストオフィスよりどうぞ。

神戸,兵庫の貸事務所,賃貸オフィスであるさくら三神ビル 本物件の詳細をご紹介致します。
さくら三神ビルについて、ご不明な点や条件交渉など、お気軽にベストオフィスまでお問合せください。
その他にも、10000件以上の物件よりお客様のご希望にあう神戸,兵庫の貸事務所,賃貸オフィスをご紹介致します。
神戸,兵庫の貸事務所,賃貸オフィスの仲介、ご相談はベストオフィスよりどうぞ。
[ こちらの物件の募集は終了しております ]
広さ、価格、場所等 類似物件もございますので、
右の 類似おすすめ物件 をご覧ください。
メイン画像
|

エントランス
|

エントランスホール
|
|

エレベーター
|

駐車場
|
|

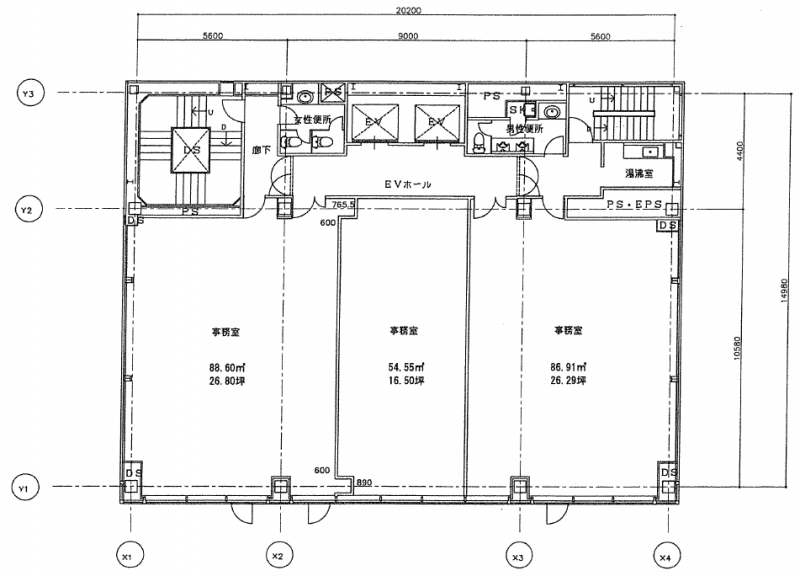
平面図
|
| 建物概要 ・ 設備 |
| 物件コード |
J2-25062-44556 |
| 物件名 |
さくら三神ビル |
| 所在地 |
神戸市中央区加納町 4-3-3 |
| 最寄駅 |
阪急神戸線神戸三宮 徒歩 1 分 JR神戸線三ノ宮 徒歩 1 分 阪神本線神戸三宮 徒歩 1 分 |
| 構造 |
鉄骨鉄筋コンクリート造 地上10階 地下1階建 |
| 竣工 |
1992年 07月 |
| 駐車場 |
有り |
| 設備 |
■ 24時間使用可能 / ■ エレベーター複数基 / ■ 個別空調方式 / ■ 機械警備 / ■ 光ファイバー / ■ OAフロア / ■ トイレ(ウォシュレット) |
| 備考 |
阪急三宮駅より徒歩1分。三宮の一等地にある前面ガラス張りの視認性良好なビルです。オフィスビルとしてのグレードも高く、また人通りの多い場所柄、クリニックや来店型店舗事務所等にも人気があります。 |
| 賃貸条件 ・ メリット |
※ 表示価格等は募集条件です。 条件交渉は
お気軽にご相談下さい。
|
| 募集階 |
5 階 |
| 契約面積 |
26.29 坪 ( 86.9 m2 ) |
| 賃料 (@坪単価) |
相談
|
| 共益費 (@坪単価) |
相談
|
| 賃料合計 (@坪単価) |
相談
|
| 保証金 (@坪単価) |
相談
|
| 礼金 (@坪単価) |
相談
|
| 解約引 |
相談
|
| 入居時期 |
- |

さくら三神ビルへのアクセスがわかりにく場合や、ご不明な点、条件交渉など、お気軽にベストオフィスまでお問合せください。
神戸,兵庫の貸事務所,賃貸オフィスの仲介、ご相談はベストオフィスよりどうぞ。