京都を中心とした貸事務所,賃貸オフィスをお探しの方、お客様のご要望にあった物件をご紹介致します。
ベストオフィスでは、京都の主要エリア別、最寄駅別、また地図より直接、
このように豊富な条件より、京都の貸事務所,賃貸オフィスを検索することができます。
また京都には様々な特色をもった貸事務所,賃貸オフィスやビルなどの事業用不動産が多数あります。
大型ビルやデザイナーズといった特色から検索することも可能です。
京都の貸事務所,賃貸オフィスをお探しの方は、お気軽にご相談ください。
ベストオフィスでは貸事務所,賃貸オフィスの仲介だけでなく、移転や出店に関するあらゆる業務のソリューションをご提案させていただいております。
疑問点や気になることは、どんなことでもご相談ください。
京都の貸事務所,賃貸オフィスの仲介、ご相談はベストオフィスよりどうぞ。

京都の貸事務所,賃貸オフィスであるK.I.四条ビル 本物件の詳細をご紹介致します。
K.I.四条ビルについて、ご不明な点や条件交渉など、お気軽にベストオフィスまでお問合せください。
その他にも、10000件以上の物件よりお客様のご希望にあう京都の貸事務所,賃貸オフィスをご紹介致します。
京都の貸事務所,賃貸オフィスの仲介、ご相談はベストオフィスよりどうぞ。
メイン画像
|

エントランス
|

エントランスホール
|
|

エレベーターホール
|

エレベーター
|
|

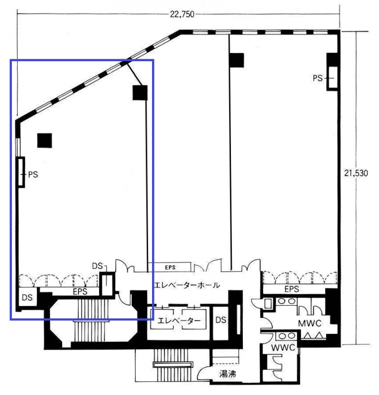
平面図
|
| 建物概要 ・ 設備 |
| 物件コード |
J3-25512-52822 |
| 物件名 |
K.I.四条ビル |
| 所在地 |
京都市下京区函谷鉾町 88 |
| 最寄駅 |
阪急京都線烏丸 徒歩 1 分 地下鉄烏丸線四条 徒歩 1 分 |
| 構造 |
鉄骨鉄筋コンクリート造 地上8階 地下2階建 |
| 竣工 |
1993年 09月 |
| 駐車場 |
有り |
| 設備 |
■ 24時間使用可能 / ■ エレベーター複数基 / ■ 個別空調方式 / ■ 機械警備 / ■ 光ファイバー / ■ トイレ(男女共) / ■ 給湯室 / ■ 駐輪場 |
| 賃貸条件 ・ メリット |
※ 表示価格等は募集条件です。 条件交渉は
お気軽にご相談下さい。
|
| 募集階 |
7 階 |
| 契約面積 |
36.71 坪 ( 121.35 m2 ) |
| 賃料 (@坪単価) |
相談
|
| 共益費 (@坪単価) |
相談
|
| 賃料合計 (@坪単価) |
相談
|
| 保証金 (@坪単価) |
相談
|
| 礼金 (@坪単価) |
相談
|
| 解約引 |
相談
|
| 入居時期 |
2026/07 |
| 備考 |
駐車場空き有り |

K.I.四条ビルへのアクセスがわかりにく場合や、ご不明な点、条件交渉など、お気軽にベストオフィスまでお問合せください。
京都の貸事務所,賃貸オフィスの仲介、ご相談はベストオフィスよりどうぞ。

閲覧いただきました物件だけでなく、K.I.四条ビルには、そのほか良い物件がありますので、ご不明な点や条件交渉などお気軽にベストオフィスまでお問合せください。
京都の貸事務所,賃貸オフィス K.I.四条ビルの仲介、ご相談はベストオフィスよりどうぞ。
| 階数 |
契約面積 |
賃料(税抜) (@坪単価) |
共益費(税抜) (@坪単価) |
保証金 (@坪単価) |
入居可能日 |
|
|
6 階 |
107.11 坪 ( 354.08 m2 )
|
相談
|
相談
|
相談
|
2026/07 |
|