大阪を中心とした貸事務所をお探しの方、お客様のご要望にあった物件をご紹介致します。
ベストオフィスでは、大阪の主要エリア別、最寄駅別、また地図より直接、
このように豊富な条件より、大阪貸事務所を検索することができます。
また大阪には様々な特色をもった貸事務所やビルなどの事業用不動産が多数あります。
大型ビルやデザイナーズといった特色から検索することも可能です。
大阪貸事務所をお探しの方は、お気軽にご相談ください。
ベストオフィスでは貸事務所の仲介だけでなく、移転や出店に関するあらゆる業務のソリューションをご提案させていただいております。
疑問点や気になることは、どんなことでもご相談ください。
大阪貸事務所の仲介、ご相談はベストオフィスよりどうぞ。

大阪の貸事務所であるアーバンエース東天満ビル 本物件の詳細をご紹介致します。
アーバンエース東天満ビルについて、ご不明な点や条件交渉など、お気軽にベストオフィスまでお問合せください。
その他にも、10000件以上の物件よりお客様のご希望にあう大阪の貸事務所をご紹介致します。
大阪の貸事務所の仲介、ご相談はベストオフィスよりどうぞ。
[ こちらの物件の募集は終了しております ]
広さ、価格、場所等 類似物件もございますので、
右の 類似おすすめ物件 をご覧ください。
メイン画像
| 建物概要 ・ 設備 |
| 物件コード |
J1-24776-42158 |
| 物件名 |
アーバンエース東天満ビル |
| 所在地 |
大阪市北区東天満 |
| 最寄駅 |
JR東西線大阪天満宮 徒歩 5 分 大阪メトロ谷町線南森町 徒歩 8 分 京阪本線天満橋 徒歩 8 分 |
| 構造 |
鉄骨造 地上10階 地下なし |
| 竣工 |
1991年 12月 |
| 駐車場 |
有り |
| 設備 |
■ 24時間使用可能 / ■ エレベーター複数基 / ■ 個別空調方式 / ■ 有人・機械併用警備 / ■ 光ファイバー / ■ OAフロア / ■ トイレ(ウォシュレット) |
| 賃貸条件 ・ メリット |
※ 表示価格等は募集条件です。 条件交渉は
お気軽にご相談下さい。
|
| 募集階 |
4 階 |
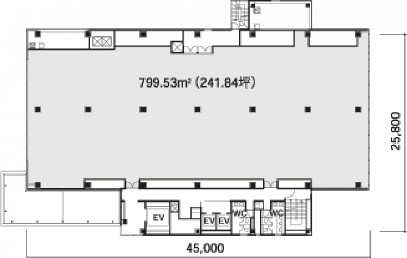
| 契約面積 |
118.75 坪 ( 392.56 m2 ) |
| 賃料 (@坪単価) |
相談
|
| 共益費 (@坪単価) |
相談
|
| 賃料合計 (@坪単価) |
相談
|
| 保証金 (@坪単価) |
相談
|
| 礼金 (@坪単価) |
相談
|
| 解約引 |
相談
|
| 入居時期 |
- |
| 備考 |
アーバンエース東天満ビルは、JR大阪環状線の「大阪天満宮駅」から徒歩5分の場所に位置しています。そのほかに、地下鉄谷町線の「南森町駅」からも徒歩8分でアクセスが可能です。 地上9階建ての賃貸オフィスビルです。1991年に竣工され、新耐震基準をクリアしている鉄骨造の物件です。2009年にはリニューアル工事が実施されました。(住所:大阪市北区東天満1丁目)室内の空調は、各室で調節が可能な個別空調を採用しています。光ファイバーを導入し、快適なインターネット環境です。ぜひお問い合わせください!! |

アーバンエース東天満ビルへのアクセスがわかりにく場合や、ご不明な点、条件交渉など、お気軽にベストオフィスまでお問合せください。
大阪の貸事務所の仲介、ご相談はベストオフィスよりどうぞ。