大阪を中心とした貸事務所をお探しの方、お客様のご要望にあった物件をご紹介致します。
ベストオフィスでは、大阪の主要エリア別、最寄駅別、また地図より直接、
このように豊富な条件より、大阪貸事務所を検索することができます。
また大阪には様々な特色をもった貸事務所やビルなどの事業用不動産が多数あります。
大型ビルやデザイナーズといった特色から検索することも可能です。
大阪貸事務所をお探しの方は、お気軽にご相談ください。
ベストオフィスでは貸事務所の仲介だけでなく、移転や出店に関するあらゆる業務のソリューションをご提案させていただいております。
疑問点や気になることは、どんなことでもご相談ください。
大阪貸事務所の仲介、ご相談はベストオフィスよりどうぞ。

大阪の貸事務所である堂北ビルディング 本物件の詳細をご紹介致します。
堂北ビルディングについて、ご不明な点や条件交渉など、お気軽にベストオフィスまでお問合せください。
その他にも、10000件以上の物件よりお客様のご希望にあう大阪の貸事務所をご紹介致します。
大阪の貸事務所の仲介、ご相談はベストオフィスよりどうぞ。
メイン画像
| 建物概要 ・ 設備 |
| 物件コード |
J1-20503-60507 |
| 物件名 |
堂北ビルディング |
| 所在地 |
大阪市北区堂島 |
| 最寄駅 |
大阪メトロ御堂筋線梅田 徒歩 8 分 大阪メトロ四ツ橋線西梅田 徒歩 5 分 JR環状線大阪 徒歩 7 分 |
| 構造 |
鉄筋コンクリート造 地上7階 地下1階建 |
| 竣工 |
1970年 01月 |
| 駐車場 |
無し |
| 設備 |
■ 24時間使用可能 / ■ エレベーター / ■ 個別空調方式 / ■ 有人・機械併用警備 / ■ 光ファイバー / ■ トイレ(ウォシュレット) |
| 備考 |
◆エレベーター1基
|
| 賃貸条件 ・ メリット |
※ 表示価格等は募集条件です。 条件交渉は
お気軽にご相談下さい。
|
| 募集階 |
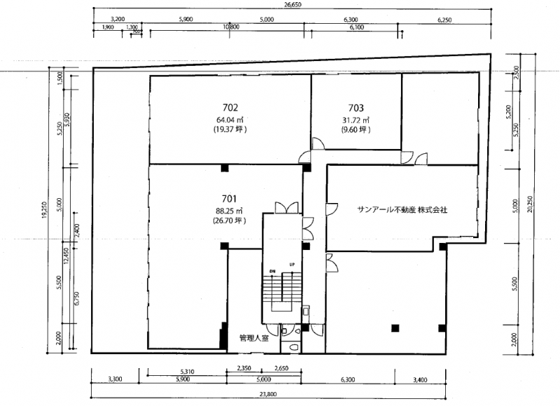
1 階 |
| 契約面積 |
46.44 坪 ( 153.52 m2 ) |
| 賃料 (@坪単価) |
626,940円 (@13,500円)( 税別 )
|
| 共益費 (@坪単価) |
139,320円 (@3,000円)( 税別 )
|
| 賃料合計 (@坪単価) |
766,260円 (@16,500円)( 税別 )
|
| 保証金 (@坪単価) |
2,298,780円 (@49,500円)
|
| 礼金 (@坪単価) |
766,260円 (@16,500円)( 税別 )
|
| 解約引 |
|
| 入居時期 |
相談 |
| 備考 |
堂北ビルディングは、大阪市北区堂島に位置する賃貸オフィスビルです。JR北新地駅・西梅田駅から徒歩4分の好立地で、地下街直結のため雨天時もスムーズにアクセスできます。1962年竣工ですが、共用部がリニューアルされており清潔感があります。ワンフロア約135坪ですが、約10坪からの分割貸しにも対応し、多様な企業のニーズに応えます。機械警備と管理人常駐でセキュリティも安心。機械式駐車場や貸会議室も備え、利便性の高いビジネス環境を提供します。 |

堂北ビルディングへのアクセスがわかりにく場合や、ご不明な点、条件交渉など、お気軽にベストオフィスまでお問合せください。
大阪の貸事務所の仲介、ご相談はベストオフィスよりどうぞ。

閲覧いただきました物件だけでなく、堂北ビルディングには、そのほか良い物件がありますので、ご不明な点や条件交渉などお気軽にベストオフィスまでお問合せください。
大阪の貸事務所 堂北ビルディングの仲介、ご相談はベストオフィスよりどうぞ。
| 階数 |
契約面積 |
賃料(税抜) (@坪単価) |
共益費(税抜) (@坪単価) |
保証金 (@坪単価) |
入居可能日 |
|
|
3 階 |
22.01 坪 ( 72.76 m2 )
|
209,095円 (@9,500円)
|
66,030円 (@3,000円)
|
825,375 (@37,500円)
|
相談 |
|
|
4 階 |
35.86 坪 ( 118.54 m2 )
|
502,040円 (@14,000円)
|
107,580円 (@3,000円)
|
1,828,860 (@51,000円)
|
|
|
|
4 階 |
47.37 坪 ( 156.59 m2 )
|
663,180円 (@14,000円)
|
142,110円 (@3,000円)
|
2,415,870 (@51,000円)
|
|
|