大阪を中心とした貸事務所,賃貸オフィスをお探しの方、お客様のご要望にあった物件をご紹介致します。
ベストオフィスでは、大阪の主要エリア別、最寄駅別、また地図より直接、
このように豊富な条件より、大阪の貸事務所,賃貸オフィスを検索することができます。
また大阪には様々な特色をもった貸事務所,賃貸オフィスやビルなどの事業用不動産が多数あります。
大型ビルやデザイナーズといった特色から検索することも可能です。
大阪の貸事務所,賃貸オフィスをお探しの方は、お気軽にご相談ください。
ベストオフィスでは貸事務所,賃貸オフィスの仲介だけでなく、移転や出店に関するあらゆる業務のソリューションをご提案させていただいております。
疑問点や気になることは、どんなことでもご相談ください。
大阪の貸事務所,賃貸オフィスの仲介、ご相談はベストオフィスよりどうぞ。

大阪の貸事務所,賃貸オフィスである梅田DTタワー 本物件の詳細をご紹介致します。
梅田DTタワーについて、ご不明な点や条件交渉など、お気軽にベストオフィスまでお問合せください。
その他にも、10000件以上の物件よりお客様のご希望にあう大阪の貸事務所,賃貸オフィスをご紹介致します。
大阪の貸事務所,賃貸オフィスの仲介、ご相談はベストオフィスよりどうぞ。
[ こちらの物件の募集は終了しております ]
広さ、価格、場所等 類似物件もございますので、
右の 類似おすすめ物件 をご覧ください。
メイン画像
|

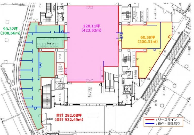
平面図
|
| 建物概要 ・ 設備 |
| 物件コード |
J1-29943-58951 |
| 物件名 |
梅田DTタワー |
| 所在地 |
大阪市北区梅田1-10-1 |
| 最寄駅 |
大阪メトロ御堂筋線梅田 徒歩 2 分 大阪メトロ四ツ橋線西梅田 徒歩 2 分 JR環状線大阪 徒歩 2 分 阪急神戸線梅田 徒歩 2 分 阪急京都線梅田 徒歩 2 分 |
| 構造 |
鉄骨造 地上27階 地下2階建 |
| 竣工 |
2003年 01月 |
| 駐車場 |
有り |
| 設備 |
■ エレベーター複数基 / ■ トイレ(男女別) |
| 備考 |
地下1階店舗可(飲食入居不可) |
| 賃貸条件 ・ メリット |
※ 表示価格等は募集条件です。 条件交渉は
お気軽にご相談下さい。
|
| 募集階 |
地下1 階 |
| 契約面積 |
284.27 坪 ( 939.73 m2 ) |
| 賃料 (@坪単価) |
相談
|
| 共益費 (@坪単価) |
相談
|
| 賃料合計 (@坪単価) |
相談
|
| 保証金 (@坪単価) |
相談
|
| 礼金 (@坪単価) |
相談
|
| 解約引 |
相談
|
| 入居時期 |
- |
| 備考 |
定期借家契約(期間相談)、スケルトン渡し、飲食店不可 |

梅田DTタワーへのアクセスがわかりにく場合や、ご不明な点、条件交渉など、お気軽にベストオフィスまでお問合せください。
大阪の貸事務所,賃貸オフィスの仲介、ご相談はベストオフィスよりどうぞ。