大阪を中心とした貸事務所,賃貸オフィスをお探しの方、お客様のご要望にあった物件をご紹介致します。
ベストオフィスでは、大阪の主要エリア別、最寄駅別、また地図より直接、
このように豊富な条件より、大阪の貸事務所,賃貸オフィスを検索することができます。
また大阪には様々な特色をもった貸事務所,賃貸オフィスやビルなどの事業用不動産が多数あります。
大型ビルやデザイナーズといった特色から検索することも可能です。
大阪の貸事務所,賃貸オフィスをお探しの方は、お気軽にご相談ください。
ベストオフィスでは貸事務所,賃貸オフィスの仲介だけでなく、移転や出店に関するあらゆる業務のソリューションをご提案させていただいております。
疑問点や気になることは、どんなことでもご相談ください。
大阪の貸事務所,賃貸オフィスの仲介、ご相談はベストオフィスよりどうぞ。

大阪の貸事務所,賃貸オフィスであるマルイト難波ビル 本物件の詳細をご紹介致します。
マルイト難波ビルについて、ご不明な点や条件交渉など、お気軽にベストオフィスまでお問合せください。
その他にも、10000件以上の物件よりお客様のご希望にあう大阪の貸事務所,賃貸オフィスをご紹介致します。
大阪の貸事務所,賃貸オフィスの仲介、ご相談はベストオフィスよりどうぞ。
メイン画像
|

オフィスエントランス
|

エレベーター1
|
|

エレベーター2
|

エントランスホール
|
|

オフィスフロア(オートロック)
|

エスカレーター(ホテルロビーへ)
|
|

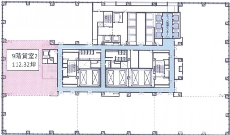
平面図
|
| 建物概要 ・ 設備 |
| 物件コード |
J1-19277-61476 |
| 物件名 |
マルイト難波ビル |
| 所在地 |
大阪市浪速区湊町 1-5-23 |
| 最寄駅 |
大阪メトロ御堂筋線なんば 徒歩 3 分 |
| 構造 |
鉄骨鉄筋コンクリート造 地上31階 地下1階建 |
| 竣工 |
2009年 06月 |
| 駐車場 |
有り |
| 設備 |
■ 24時間使用可能 / ■ エレベーター / ■ 個別空調方式 / ■ 機械警備 / ■ 光ファイバー / ■ OAフロア / ■ トイレ(ウォシュレット) |
| 備考 |
JR難波駅地直結の超大型複合ビル。高層フロアには高級ホテル、中層フロアがオフィスゾーン、低層フロアが商業ゾーンで、クリニックや大型書店、ホームセンターなどが入居しており様々なビジネスシーンに対応しています。 |
| 賃貸条件 ・ メリット |
※ 表示価格等は募集条件です。 条件交渉は
お気軽にご相談下さい。
|
| 募集階 |
9 階 |
| 契約面積 |
112.32 坪 ( 371.3 m2 ) |
| 賃料 (@坪単価) |
相談
|
| 共益費 (@坪単価) |
相談
|
| 賃料合計 (@坪単価) |
相談
|
| 保証金 (@坪単価) |
相談
|
| 礼金 (@坪単価) |
相談
|
| 解約引 |
相談
|
| 入居時期 |
2026/1 |
| 備考 |
マルイト難波ビル は、大阪・難波の新たなランドマークとなる地上31階建て、高さ144mの超高層複合ビルです。JR難波駅に直結しており、地下鉄や私鉄各線からも徒歩圏内の交通至便な立地が最大の特徴です。 ビル内は地下1階から3階が店舗、4階から6階が駐車場、7階から20階がオフィスフロア、そして21階から31階には「ホテルモントレ グラスミア大阪」が入居しています。ホテル高層階からの眺望も魅力で、店舗、オフィス、ホテルという多機能性が集積した難波エリアの拠点となっています。 |

マルイト難波ビルへのアクセスがわかりにく場合や、ご不明な点、条件交渉など、お気軽にベストオフィスまでお問合せください。
大阪の貸事務所,賃貸オフィスの仲介、ご相談はベストオフィスよりどうぞ。