大阪を中心とした貸事務所,賃貸オフィスをお探しの方、お客様のご要望にあった物件をご紹介致します。
ベストオフィスでは、大阪の主要エリア別、最寄駅別、また地図より直接、
このように豊富な条件より、大阪の貸事務所,賃貸オフィスを検索することができます。
また大阪には様々な特色をもった貸事務所,賃貸オフィスやビルなどの事業用不動産が多数あります。
大型ビルやデザイナーズといった特色から検索することも可能です。
大阪の貸事務所,賃貸オフィスをお探しの方は、お気軽にご相談ください。
ベストオフィスでは貸事務所,賃貸オフィスの仲介だけでなく、移転や出店に関するあらゆる業務のソリューションをご提案させていただいております。
疑問点や気になることは、どんなことでもご相談ください。
大阪の貸事務所,賃貸オフィスの仲介、ご相談はベストオフィスよりどうぞ。

大阪の貸事務所,賃貸オフィスであるJM148 本物件の詳細をご紹介致します。
JM148について、ご不明な点や条件交渉など、お気軽にベストオフィスまでお問合せください。
その他にも、10000件以上の物件よりお客様のご希望にあう大阪の貸事務所,賃貸オフィスをご紹介致します。
大阪の貸事務所,賃貸オフィスの仲介、ご相談はベストオフィスよりどうぞ。
メイン画像
| 建物概要 ・ 設備 |
| 物件コード |
J1-30265-61945 |
| 物件名 |
JM148 |
| 所在地 |
大阪市東成区神路2丁目7-3- |
| 最寄駅 |
大阪メトロ千日前線新深江 徒歩 11 分 大阪メトロ中央線深江橋 徒歩 10 分 |
| 構造 |
鉄骨ALC造 地上2階 地下なし |
| 竣工 |
2024年 11月 |
| 駐車場 |
有り |
| 設備 |
■ 24時間使用可能 / ■ 個別空調方式 / ■ 電動シャッター / ■ OAフロア / ■ トイレ(男女別) |
| 備考 |
1Fフリースペース 50.14坪 フォークリフト用電源、電動シャッター
2Fオフィススペース 57.46坪 個別空調、OAフロア、男女別トイレ
・検査済証あり
|
| 賃貸条件 ・ メリット |
※ 表示価格等は募集条件です。 条件交渉は
お気軽にご相談下さい。
|
| 募集階 |
1棟 |
| 契約面積 |
107.61 坪 ( 355.73 m2 ) |
| 賃料 (@坪単価) |
1,500,000円 (@13,939円)( 税別 )
|
| 共益費 (@坪単価) |
0円 (@0円)( 税別 )
|
| 賃料合計 (@坪単価) |
1,500,000円 (@13,939円)( 税別 )
|
| 保証金 (@坪単価) |
15,000,000円 (@139,392円)
|
| 礼金 (@坪単価) |
0円 (@0円)( 税別 )
|
| 解約引 |
解約引き4,950,000(税込) |
| 入居時期 |
2026/7/1 |
| 備考 |
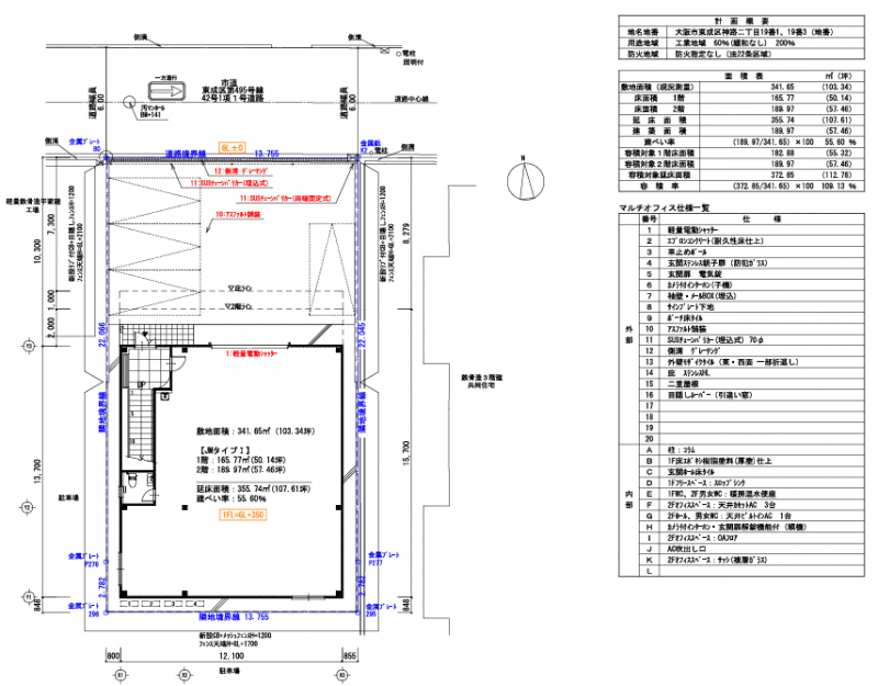
JM148」は、2024年11月に竣工した大阪市東成区の新築事務所兼倉庫です。 1階が約50坪の倉庫、2階が約57坪の事務所で構成された延床面積107.67坪の鉄骨造2階建て物件です。中央線「深江橋駅」から徒歩圏内で、内環状線へのアクセスも良く配送拠点に適しています。前面には複数台の駐車・荷揚スペースを確保。新築ならではの清潔感と、一棟貸しによる独立した作業環境が最大の特徴です。 |

JM148へのアクセスがわかりにく場合や、ご不明な点、条件交渉など、お気軽にベストオフィスまでお問合せください。
大阪の貸事務所,賃貸オフィスの仲介、ご相談はベストオフィスよりどうぞ。