大阪を中心とした貸事務所,賃貸オフィスをお探しの方、お客様のご要望にあった物件をご紹介致します。
ベストオフィスでは、大阪の主要エリア別、最寄駅別、また地図より直接、
このように豊富な条件より、大阪の貸事務所,賃貸オフィスを検索することができます。
また大阪には様々な特色をもった貸事務所,賃貸オフィスやビルなどの事業用不動産が多数あります。
大型ビルやデザイナーズといった特色から検索することも可能です。
大阪の貸事務所,賃貸オフィスをお探しの方は、お気軽にご相談ください。
ベストオフィスでは貸事務所,賃貸オフィスの仲介だけでなく、移転や出店に関するあらゆる業務のソリューションをご提案させていただいております。
疑問点や気になることは、どんなことでもご相談ください。
大阪の貸事務所,賃貸オフィスの仲介、ご相談はベストオフィスよりどうぞ。

大阪の貸事務所,賃貸オフィスである本町東栄ビル 本物件の詳細をご紹介致します。
本町東栄ビルについて、ご不明な点や条件交渉など、お気軽にベストオフィスまでお問合せください。
その他にも、10000件以上の物件よりお客様のご希望にあう大阪の貸事務所,賃貸オフィスをご紹介致します。
大阪の貸事務所,賃貸オフィスの仲介、ご相談はベストオフィスよりどうぞ。
メイン画像
|

エントランス
|

エレベーターホール
|
|

洗面化粧台
|

給湯室
|
|

トイレ
|

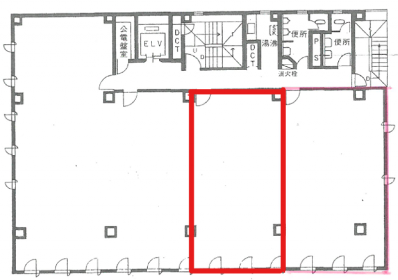
平面図
|
| 建物概要 ・ 設備 |
| 物件コード |
J1-20087-61989 |
| 物件名 |
本町東栄ビル |
| 所在地 |
大阪市中央区瓦町 4-7-8 |
| 最寄駅 |
大阪メトロ四ツ橋線本町 徒歩 3 分 大阪メトロ御堂筋線淀屋橋 徒歩 7 分 大阪メトロ御堂筋線本町 徒歩 5 分 |
| 構造 |
鉄骨造 地上9階 地下1階建 |
| 竣工 |
1984年 03月 |
| 駐車場 |
近隣確保 |
| 設備 |
■ 24時間使用可能 / ■ エレベーター / ■ 個別空調方式 / ■ 機械警備 / ■ 光ファイバー / ■ OAフロア / ■ トイレ(ウォシュレット) |
| 備考 |
◆エレベーター1基
|
| 賃貸条件 ・ メリット |
※ 表示価格等は募集条件です。 条件交渉は
お気軽にご相談下さい。
|
| 募集階 |
2 階 |
| 契約面積 |
21.00 坪 ( 69.42 m2 ) |
| 賃料 (@坪単価) |
231,000円 (@11,000円)( 税別 )
|
| 共益費 (@坪単価) |
0円 (@0円)( 税別 )
|
| 賃料合計 (@坪単価) |
231,000円 (@11,000円)( 税別 )
|
| 保証金 (@坪単価) |
1,848,000円 (@88,000円)
|
| 礼金 (@坪単価) |
0円 (@0円)( 税別 )
|
| 解約引 |
|
| 入居時期 |
即 |
| 備考 |
大阪の本町エリアに位置する本町東栄ビルは、 1984年竣工ながら新耐震基準を満たした地上9階建ての賃貸オフィスです。レンガ調の重厚でレトロな外観が特徴で、地下鉄「本町駅」から徒歩約4分と優れた交通利便性を誇ります。 24時間利用可能な機械警備や個別空調、男女別トイレといった設備を完備。周辺は飲食店も多く、落ち着いた環境で快適なビジネス空間を提供しています。 |

本町東栄ビルへのアクセスがわかりにく場合や、ご不明な点、条件交渉など、お気軽にベストオフィスまでお問合せください。
大阪の貸事務所,賃貸オフィスの仲介、ご相談はベストオフィスよりどうぞ。

閲覧いただきました物件だけでなく、本町東栄ビルには、そのほか良い物件がありますので、ご不明な点や条件交渉などお気軽にベストオフィスまでお問合せください。
大阪の貸事務所,賃貸オフィス 本町東栄ビルの仲介、ご相談はベストオフィスよりどうぞ。
| 階数 |
契約面積 |
賃料(税抜) (@坪単価) |
共益費(税抜) (@坪単価) |
保証金 (@坪単価) |
入居可能日 |
|
|
5 階 |
41.50 坪 ( 137.19 m2 )
|
456,500円 (@11,000円)
|
0円 (@0円)
|
3,652,000 (@88,000円)
|
即 |
|