大阪を中心とした貸事務所,賃貸オフィスをお探しの方、お客様のご要望にあった物件をご紹介致します。
ベストオフィスでは、大阪の主要エリア別、最寄駅別、また地図より直接、
このように豊富な条件より、大阪の貸事務所,賃貸オフィスを検索することができます。
また大阪には様々な特色をもった貸事務所,賃貸オフィスやビルなどの事業用不動産が多数あります。
大型ビルやデザイナーズといった特色から検索することも可能です。
大阪の貸事務所,賃貸オフィスをお探しの方は、お気軽にご相談ください。
ベストオフィスでは貸事務所,賃貸オフィスの仲介だけでなく、移転や出店に関するあらゆる業務のソリューションをご提案させていただいております。
疑問点や気になることは、どんなことでもご相談ください。
大阪の貸事務所,賃貸オフィスの仲介、ご相談はベストオフィスよりどうぞ。

大阪の貸事務所,賃貸オフィスであるJM170 本物件の詳細をご紹介致します。
JM170について、ご不明な点や条件交渉など、お気軽にベストオフィスまでお問合せください。
その他にも、10000件以上の物件よりお客様のご希望にあう大阪の貸事務所,賃貸オフィスをご紹介致します。
大阪の貸事務所,賃貸オフィスの仲介、ご相談はベストオフィスよりどうぞ。
メイン画像
| 建物概要 ・ 設備 |
| 物件コード |
J1-30269-61997 |
| 物件名 |
JM170 |
| 所在地 |
大阪市浪速区桜川4丁目3-1- |
| 最寄駅 |
南海電鉄汐見橋線汐見橋 徒歩 4 分 JR環状線大正 徒歩 5 分 大阪メトロ千日前線桜川 徒歩 6 分 阪神なんば線桜川 徒歩 5 分 |
| 構造 |
鉄骨ALC造 地上2階 地下なし |
| 竣工 |
2026年 08月 |
| 駐車場 |
有り |
| 設備 |
■ 24時間使用可能 / ■ 個別空調方式 / ■ OAフロア / ■ トイレ(男女別) / ■ リフト / ■ 電動シャッター |
| 備考 |
1Fフリースペース 211.16 ㎡ フォークリフト用電源、電動シャッター、個別空調、自動扉
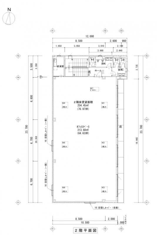
2Fオフィススペース 254.45 ㎡ 個別空調、OAフロア、男女別トイレ |
| 賃貸条件 ・ メリット |
※ 表示価格等は募集条件です。 条件交渉は
お気軽にご相談下さい。
|
| 募集階 |
1棟 |
| 契約面積 |
140.84 坪 ( 465.58 m2 ) |
| 賃料 (@坪単価) |
2,970,000円 (@21,088円)( 税別 )
|
| 共益費 (@坪単価) |
0円 (@0円)( 税別 )
|
| 賃料合計 (@坪単価) |
2,970,000円 (@21,088円)( 税別 )
|
| 保証金 (@坪単価) |
27,000,000円 (@191,707円)
|
| 礼金 (@坪単価) |
0円 (@0円)( 税別 )
|
| 解約引 |
解約引き8,910,000円(税込) |
| 入居時期 |
|
| 備考 |
「JM170」は、大阪市浪速区桜川4丁目に位置する2026年8月竣工予定の新築賃貸倉庫・事務所です。地上2階建てで、延床面積は約140坪(465.61㎡)。最大の特徴は、大阪都心部にありながら敷地内に大型ヤード(駐車場)を完備している点です。阪神なんば線「桜川駅」徒歩4分、南海「汐見橋駅」徒歩6分と交通利便性が極めて高く、都市型配送拠点やショールーム兼オフィスとして最適な物件です。 |

JM170へのアクセスがわかりにく場合や、ご不明な点、条件交渉など、お気軽にベストオフィスまでお問合せください。
大阪の貸事務所,賃貸オフィスの仲介、ご相談はベストオフィスよりどうぞ。