大阪を中心とした貸事務所,賃貸オフィスをお探しの方、お客様のご要望にあった物件をご紹介致します。
ベストオフィスでは、大阪の主要エリア別、最寄駅別、また地図より直接、
このように豊富な条件より、大阪の貸事務所,賃貸オフィスを検索することができます。
また大阪には様々な特色をもった貸事務所,賃貸オフィスやビルなどの事業用不動産が多数あります。
大型ビルやデザイナーズといった特色から検索することも可能です。
大阪の貸事務所,賃貸オフィスをお探しの方は、お気軽にご相談ください。
ベストオフィスでは貸事務所,賃貸オフィスの仲介だけでなく、移転や出店に関するあらゆる業務のソリューションをご提案させていただいております。
疑問点や気になることは、どんなことでもご相談ください。
大阪の貸事務所,賃貸オフィスの仲介、ご相談はベストオフィスよりどうぞ。

大阪の貸事務所,賃貸オフィスであるCOM8 本物件の詳細をご紹介致します。
COM8について、ご不明な点や条件交渉など、お気軽にベストオフィスまでお問合せください。
その他にも、10000件以上の物件よりお客様のご希望にあう大阪の貸事務所,賃貸オフィスをご紹介致します。
大阪の貸事務所,賃貸オフィスの仲介、ご相談はベストオフィスよりどうぞ。
メイン画像
|

平面図
|
| 建物概要 ・ 設備 |
| 物件コード |
J1-30285-62178 |
| 物件名 |
COM8 |
| 所在地 |
大阪府東大阪市楠根1丁目8-20- |
| 最寄駅 |
大阪メトロ中央線長田 徒歩 15 分 |
| 構造 |
鉄骨ALC造 地上2階 地下なし |
| 竣工 |
2002年 02月 |
| 駐車場 |
有り |
| 設備 |
■ 24時間使用可能 / ■ 個別空調方式 / ■ トイレ / ■ 電動シャッター |
| 備考 |
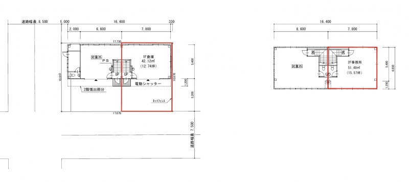
1Fフリースペース (12.74 坪) 電動シャッター
2Fオフィススペース (15.57 坪) 個別空調、トイレ |
| 賃貸条件 ・ メリット |
※ 表示価格等は募集条件です。 条件交渉は
お気軽にご相談下さい。
|
| 募集階 |
B |
| 契約面積 |
28.31 坪 ( 93.58 m2 ) |
| 賃料 (@坪単価) |
350,000円 (@0円)( 税別 )
|
| 共益費 (@坪単価) |
0円 (@0円)( 税別 )
|
| 賃料合計 (@坪単価) |
350,000円 (@0円)( 税別 )
|
| 保証金 (@坪単価) |
3,500,000円 (@0円)
|
| 礼金 (@坪単価) |
0円 (@0円)( 税別 )
|
| 解約引 |
解約控除金¥1,1550,000円(税込み) |
| 入居時期 |
2026/7/1 |
| 備考 |
大阪府東大阪市楠根1丁目8-20に位置する COM8は、2002年2月築の地上2階建て賃貸事務所ビルです。地下鉄中央線「長田」駅から徒歩約14〜15分の距離にあり、新耐震基準に適合しています。24時間使用可能で、ワンフロア約28坪(約93㎡)の広さを持ち、1・2階セットでの一括利用も想定された設計が特徴です。周辺は住宅と事業所が混在するエリアで、利便性の高いオフィス環境を提供しています。 |

COM8へのアクセスがわかりにく場合や、ご不明な点、条件交渉など、お気軽にベストオフィスまでお問合せください。
大阪の貸事務所,賃貸オフィスの仲介、ご相談はベストオフィスよりどうぞ。