大阪を中心とした貸事務所,賃貸オフィスをお探しの方、お客様のご要望にあった物件をご紹介致します。
ベストオフィスでは、大阪の主要エリア別、最寄駅別、また地図より直接、
このように豊富な条件より、大阪の貸事務所,賃貸オフィスを検索することができます。
また大阪には様々な特色をもった貸事務所,賃貸オフィスやビルなどの事業用不動産が多数あります。
大型ビルやデザイナーズといった特色から検索することも可能です。
大阪の貸事務所,賃貸オフィスをお探しの方は、お気軽にご相談ください。
ベストオフィスでは貸事務所,賃貸オフィスの仲介だけでなく、移転や出店に関するあらゆる業務のソリューションをご提案させていただいております。
疑問点や気になることは、どんなことでもご相談ください。
大阪の貸事務所,賃貸オフィスの仲介、ご相談はベストオフィスよりどうぞ。

大阪の貸事務所,賃貸オフィスである福島サンアール11号館 本物件の詳細をご紹介致します。
福島サンアール11号館について、ご不明な点や条件交渉など、お気軽にベストオフィスまでお問合せください。
その他にも、10000件以上の物件よりお客様のご希望にあう大阪の貸事務所,賃貸オフィスをご紹介致します。
大阪の貸事務所,賃貸オフィスの仲介、ご相談はベストオフィスよりどうぞ。
メイン画像
|

エントランス
|

エレベーターホール
|
|

階段
|

廊下
|
|

室内1
|

室内2
|
|

室内3
|

室内4
|
|

眺望
|

給湯設備
|
|

トイレ1
|

トイレ2
|
|

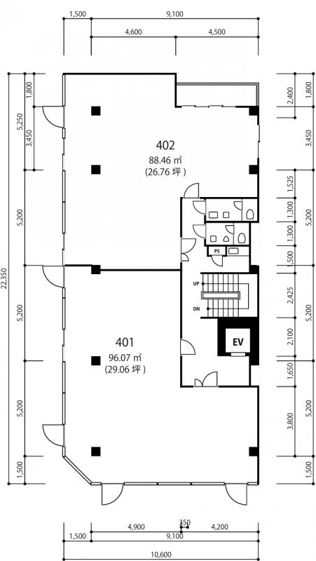
平面図
|
| 建物概要 ・ 設備 |
| 物件コード |
J1-20499-63753 |
| 物件名 |
福島サンアール11号館 |
| 所在地 |
大阪市福島区福島 1-3-11 |
| 最寄駅 |
阪神本線福島 徒歩 2 分 JR東西線新福島 徒歩 2 分 JR環状線福島 徒歩 2 分 |
| 構造 |
鉄骨造 地上5階 地下なし |
| 竣工 |
1991年 07月 |
| 駐車場 |
無し |
| 設備 |
■ 24時間使用可能 / ■ エレベーター / ■ 個別空調方式 / ■ 光ファイバー / ■ トイレ(ウォシュレット) / ■ トイレ(男女別) / ■ 駐輪場 |
| 備考 |
◆エレベーター1基 |
| 賃貸条件 ・ メリット |
※ 表示価格等は募集条件です。 条件交渉は
お気軽にご相談下さい。
|
| 募集階 |
4 階 |
| 契約面積 |
29.06 坪 ( 96.06 m2 ) |
| 賃料 (@坪単価) |
305,130円 (@10,500円)( 税別 )
|
| 共益費 (@坪単価) |
87,180円 (@3,000円)( 税別 )
|
| 賃料合計 (@坪単価) |
392,310円 (@13,500円)( 税別 )
|
| 保証金 (@坪単価) |
4,707,720円 (@162,000円)
|
| 礼金 (@坪単価) |
0円 (@0円)( 税別 )
|
| 解約引 |
敷引き30% |
| 入居時期 |
即 |
| 備考 |
福島サンアール11号館(旧称:福島11号館)は、大阪市福島区に位置する地上10階・地下1階建ての賃貸オフィスビルです。最大の特徴は、JR東西線「新福島駅」および阪神本線「福島駅」から 徒歩2分という絶好のアクセス性にあります。1992年竣工で、新耐震基準に適合。個別空調や男女別トイレ、光ファイバーを完備し、24時間使用可能です。周辺は飲食店が豊富で、利便性と機能性を兼ね備えたビジネス拠点です。 |

福島サンアール11号館へのアクセスがわかりにく場合や、ご不明な点、条件交渉など、お気軽にベストオフィスまでお問合せください。
大阪の貸事務所,賃貸オフィスの仲介、ご相談はベストオフィスよりどうぞ。